Appartement
MONTPELLIER (34000)
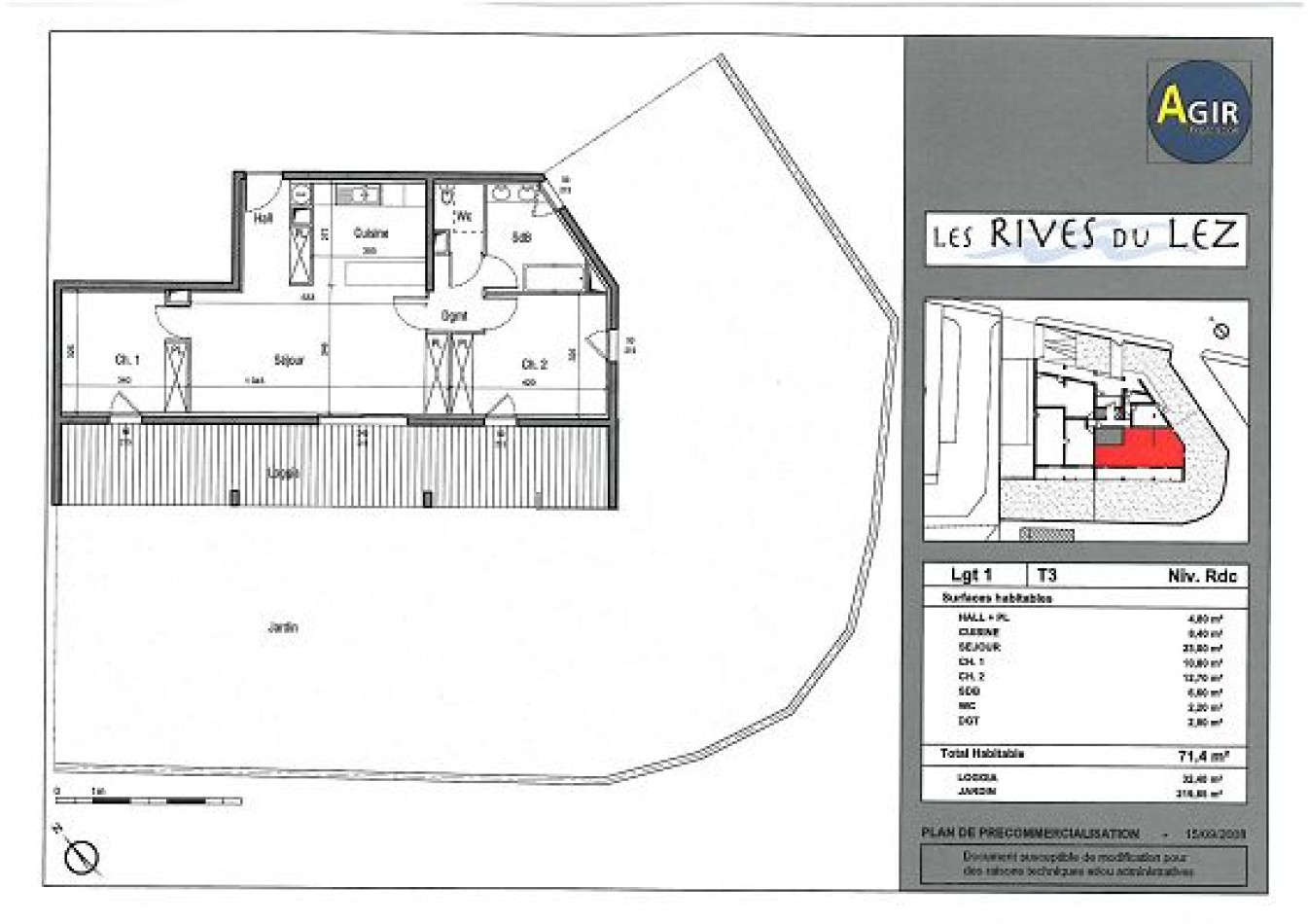
- 72 m²
 - 3 pièce(s)
 - 2 chambre(s)
 - 220 m²
 
ANTIGONE / RICHTER - Idéalement situé entre la Faculté de Sciences et le quartier d'Antigone, tram I et II à moins de 150 m - Au sein d'une petite résidence calme et sécurisée, très agréable appartement T3 situé en rez de jardin avec grand séjour et cuisine entièrement équipée, 2 grandes chambres avec placards et parking privatif en sous-sol. Spacieuse terrasse de 32 m² et jardin privatif de 220 m². Possibilité d'acquérir un parking supplémentaire. Bien soumis au statut juridique de la Copropriété. Nb de lots : 16. Charges annuelles de copropriété (Montant moyen annuel quote-part du budget prévisionnel vendeur) : 2 034,46 €. Pas de procédure en cours.
 Honoraires TTC charge vendeur Gérant associé O6 74 88 41 52 - RSAC N° 491 636 452 Surface CARREZ : 71.4 m² Surface CARREZ : 72.16 m²
Notre barème d'honoraires
* Honoraires charge vendeur.
Ce bien ne figure plus au catalogue car il a été vendu.
	



















	